Apartament For Sprzedane.

2pokoje z balkonem i ogródkiem : ). Sprzedane

Jeśli szukasz mieszkania w nowym budynku i w ciekawym, zielonym miejscu to na pewno będziesz zadowolony 😉
Mieszkanie jest na 1 piętrze a jednak jest przeznaczony do tego mieszkania uroczy ogródek (35 mkw, wejście schodkami).

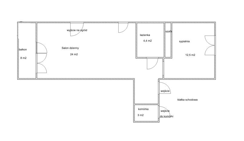
Sporą zaletą jest również słoneczny salon z wyjściem na duży balkon (8 mkw) który zachęca do spędzania w nim wolnych chwil także mieszkanie posiada ogródek do grilowania a także spory balkon dla ogólnego relaksu.

Plac zabaw jest na terenie osiedla, brama zamykana i monitoring.

Ogrzewanie podłogowe – źródło ogrzewania – pompa ciepła gruntowa, która zapewnia dodatkowo niskie koszty ogrzewania w sezonie zimowym.
Do mieszkania przynależy komórka lokatorska o wielkości prawie 3 mkw oraz miejsce parkingowe bezpośrednio pod budynkiem ( dodatkowo płatne 20 000 pln).

W najbliższej okolicy jest dużo terenów zielonych jak Rudzka Góra, Stawy Stefańskiego, Las popioły, restauracji ( m.in. Bacówka u Józka; Ski Resort – Restauracja Alpejska) oraz sklepów ( Biedronka – 400 metrów od osiedla; kwiaciarnia, piekarnia) dodatkowo bardzo blisko jest do centrum handlowego Port Łódź.
W okolicy 200 metrów od osiedla znajduje się żłobek, przedszkole, basen oraz kryte korty tenisowe.

Zapraszam do umówienia się na prezentację nieruchomości 735 957 444.

Powyższa oferta ma charakter informacyjny i nie stanowi oferty handlowej w rozumieniu art.66 1 kodeksu cywilnego oraz innych właściwych przepisów prawnych.

Adres:
Łódź
ID nieruchomości:
02/02/55/23
Opis Parkingu:
Do mieszkania przynależy komórka lokatorska o wielkości prawie 3 mkw oraz miejsce parkingowe bezpośrednio pod budynkiem ( dodatkowo płatne 20 000 pln).
Materiał budowlany:
Silikat
Stan:
Sporą zaletą jest również słoneczny salon z wyjściem na duży balkon (8 mkw) który zachęca do spędzania w nim wolnych chwil
Kuchnia:
Aneks kuchnenny z oknem i sprzętem AGD.
Okna:
Okna na 3 strony świata.
498000zł.
Powierzchnia
49 m2
Powierzchnia działki
35 m2
Pokoje
2
Sypialnie
1
Rok budowy
2018
Piętro
1
Piętra
2
Miejsca parkingowe
1
Udogodninia.
  • Balkon
  • Internet
  • Telewizja kablowa
  • Wysoki standard
Plany nieruchomości.
zobacz także

Polecane oferty.